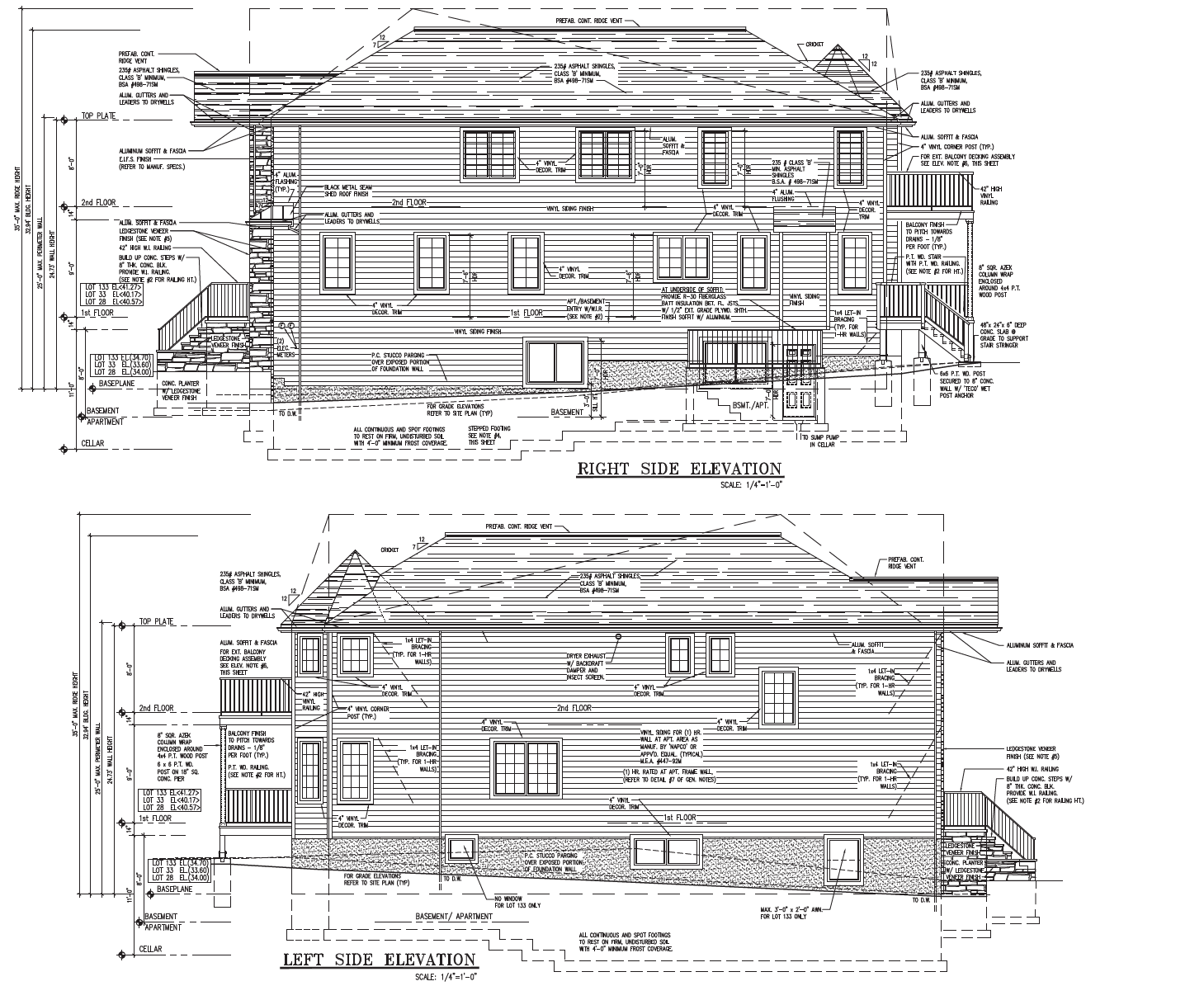
Woodvale Avenue Plans Photos Project Photos & VideosWeekly Updates Project Plans148 Woodvale Approved Plans 154 Woodvale Approved Plans 156 Woodvale Approved Plans Woodvale Site Plan Woodvale Elevation (Left and Right)