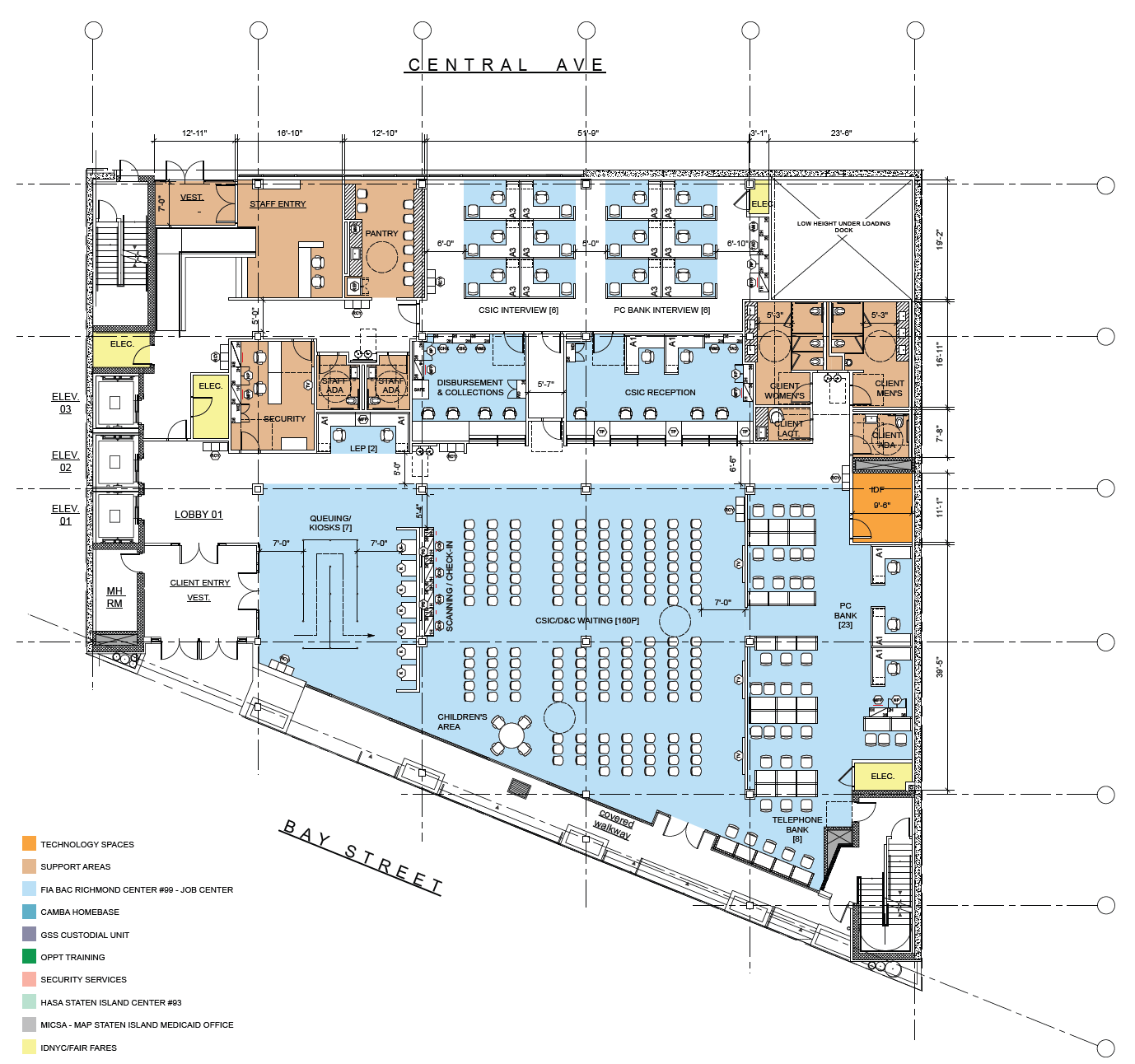
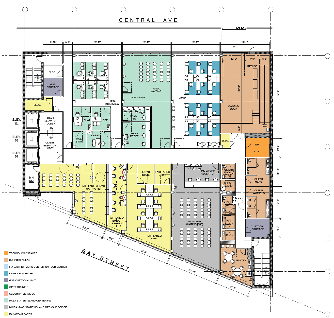
Bay Opportunity Zone142 Bay Street (Bay O.Z. I) Plans Photos 5 FLOORS 60,000+ SQ. FT. N/A EST. COMPLETION ACTIVE STATUS Project PhotosWeekly Updates Project Plans142 Bay Street Plans Cellar Plan – 142 Bay Street 1st Floor Plan – 142 Bay Street 2nd Floor Plan – 142 Bay Street 3rd Floor Plan – 142 Bay Street 4th Floor Plan – 142 Bay Street